Thiết kế nội thất chung cư 50m2 – thành công từ cái nhìn đầu tiên

“Tại sao chúng tôi lại khẳng định “thiết kế nội thất chung cư 50m2 – thành công từ cái nhìn đầu tiên!”. Đó là bởi, dù căn hộ nhỏ vọn vẹn chỉ 50m2 nhưng nhờ vào thiết kế thông mình cùng với việc tạo ra không gian “ẩn” khéo léo đã giúp cho căn hộ nhỏ nhắn này trở nên rộng rãi, tiện nghi đến bất ngờ, đáp ứng nhu cầu sử dụng của một gia đình nhỏ 3 – 4 thành viên”.
Căn hộ tuy nhỏ nhưng cấu trúc mở đã cho phép gia chủ tận dụng tối đa cả về chiều rộng lẫn chiều sâu của không gian một cách hiệu quả. Bên cạnh đó, việc sử dụng những thiết kế thông minh đã tạo ra những vùng chức năng cơn bản và mang đến sự tiện nghi cho gia chủ. Hãy xem thiết kế đó như thế nào và ngắm nhìn món nội thất thông minh ấy là gì nhé!
Bạn không nghĩ rằng một căn hộ 50m2 lại có không gian phòng khách rộng như thế phải không? Thế nhưng điều mà bạn đang nhìn thấy chính là sự thất. Căn hộ đã sử dụng bố cục và màu sắc một cách triệt để. Màu trắng được tận dụng tối đa trong căn hộ này, đồng thời việc kết hợp với ánh sáng tự nhiên từ hệ thống cửa sổ mang đến sự rộng rãi, tạo ra chiều sâu cho không gian, giúp không gian trở nên thoáng đãng, rộng rãi hơn so với diện tích thực. Cho dù kê một bộ bàn ghế sofa cỡ lớn như thế này cũng không còn là vấn đề khiến gia chủ phải lo lắng.

Không gian thiết kế nội thất mở bao gồm đầy đủ các vùng chức năng chính: phòng khách, phòng ăn – bếp và khu vực bàn làm việc kín đáo. Những điểm nhấn màu xanh ngọc lam tươi trẻ, mang lại cảm giác “mát mắt” sự thoáng rộng và cá tính riêng cho không gian nơi đây, đồng thời tạo ra một “vách ngăn màu sắc” rõ ràng mà không khiến căn hộ trở nên bí bách.

Phòng khách nhìn ở một góc nhìn khác nhau, lại mang đến một sự thú vị riêng. Phòng khách tối giản trong khuôn khổ của một tấm thảm trải sàn hình học thú vị, cùng với đó, cách sắp xếp ghế sofa kê sát mép thảm trải chính là “mấu chốt” điểm nhấn đặc biệt và là dụng ý của nhà thiết kế nhằm tạo cảm giác rộng rãi hơn cho phòng khách nhỏ nhắn.

Nội thất nhà bếp và phòng ăn cởi mở được đặt ngay cạnh cửa sổ, hệ thống tủ bếp đơn giản không tay cầm, nếu như thoáng qua bạn sẽ không nghĩ đó là một chiếc tủ bếp phải không? Giống như một bức tường trắng chính là cách “ẩn mình” đặc biệt, kết hợp thêm gạch hoa văn màu sắc đã tạo nên một cá tính rất riêng cho không gian nơi đây, trẻ trung, năng động và cũng rất tinh tế. Chẳng ai có thể phàn nàn về không gian phòng bếp nơi đây!

Có phải ngay từ đầu bạn đã thắc mắc về chiếc vách ngăn trắng trong phòng khách kia không? Vậy thì hãy nhìn kỹ nó nhé! Không đơn giản chỉ là một mẫu vách ngăn thông thường, mà ẩn dấu phía trong nó chính là chiếc cửa cánh trượt giúp gia chủ phân vùng hiệu quả cho không gian, tạo ra sự khép kín giữa phòng khách với phòng ngủ, nó tạo ra một không gian riêng tư cần thiết cho các thành viên của gia đình. Quả là một ý tưởng thiết kế nội thất thông minh phải không? Liệu rằng bạn đã bạn thiết kế căn hộ chung cư 50m2 này chính phục hay chưa? Nếu chưa thì hãy tiếp tục đi theo AGOO vào đến phòng ngủ nhé!

Có phải lúc trước bạn không hề thấy sự xuất hiện của phòng ngủ phải không? Bạn đã không nhìn thấy chiếc giường là bởi nó đã được giấu trong bức tường một cách thông minh. Giống như cửa trượt nó có thể sử dụng một cách linh hoạt tùy ý theo nhu cầu sử dụng của gia chủ.

Phòng ngủ sẽ trở nên vô cùng rộng rãi và thoáng đãng với chiếc giường ngủ cỡ lớn cho dù căn hộ chỉ có diện tích 50m2. Hệ thống kệ tủ quần áo gam màu trắng không tay cầm cũng là một lợi thế giúp không gian trở nên rộng hơn. Bên cạnh phòng ngủ của bố mẹ là phòng ngủ cho bé, khi trẻ còn nhỏ bạn có thể đặt một chiếc nôi nằm ngay bên cạnh giường của bố mẹ và không cần phải ngăn cách, nhưng khi trẻ lớn hơn chỉ cần sử dụng một hệ thống kệ tủ vách ngăn, một chiếc cửa đơn giản là bé và bố mẹ đều sẽ có không gian riêng cho mình.

Phòng tắm trong có vẻ nhỏ gọn nhưng hết sức tiện nghi. Nổi bật với gam màu trắng làm chủ đạo kết hơp với xanh lam tạo nên không khí mát mẻ trông thấy, giúp cho căn phòng thêm thoáng rộng hơn so với diện tích thực dù không thể sử dụng nguồn ánh sáng tự nhiên. Thiết kế đơn giản nhưng vô cùng sang trọng chính là điểm cộng cho căn phòng.

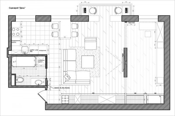
Sơ đồ bố trí nội thất chung cư 50m2.











